Napellenző
Napellenzők minőségi kivitelezése
A napellenzők hasznos és dekoratív kiegészítői családi házak teraszainak, társasházi lakások erkélyeinek, vagy vendéglátó ipari, szállodaipari létesítmények kerthelyiségeinek. A különböző napellenző típusok igazodnak az igényeihez és a beépítési követelményekhez.
A napellenzőket működtetheti kézi erővel – tekerőkarral, elektromotorral, vagy akár mindkettővel. Az elektromotoros berendezésekhez időjárásfüggő vezérlés is rendelhető. Az árnyékolókat szarufára, vízszintes, függőleges falfelületre, vagy szabadon álló állványra lehet rögzíteni. A szerelésnél fontos az épületszerkezetnek megfelelő rögzítőanyag megválasztása.
Basic New napellenző

Könyökkaros napellenző
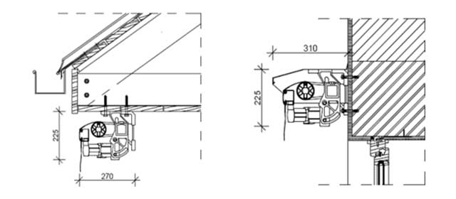
A Basic típusú napellenzők hagyományos könyökkaros árnyékolók, melyek felszerelhetők homlokzatra, szarufára vagy akár eresz alá is.
- A szerkezet egy 40 x 40 mm-es zártszelvényre kerül ráépítésre, könnyen felszerelhető egységet képvisel.
- A típus 2 m-től 10 m-esszélességig egyben gyártható, a kinyúlás méretlépcsői: 1500, 2000, 2500, 3000, 3250, 3500 mm.
- A napellenzők 5 m-es szélességig 2 karral, 5 és 6 méteresszélesség között választhatóan 2 vagy 3 karral, 6 és 8 m között 3 karral, 8m felett 4 könyökkarral készülnek.
- A karbillentők fogadják a napellenzőkarokat, két billentő típus: az egyikkel 0 – 75 fokig, a másikkal 13 – 90 fokig állítható a ponyva lejtése.
- A kinyúlás vízszintes helyzetben értendő, mert a ponyva szögének változtatásával csökken az általa lefedett terület.
- Ajánlott minimális lejtőszög: 13 fok az esővíz könnyű lefolyása miatt.
- A napellenző karokban előfeszített rugós mechanizmus található.
- Fontos, hogy a karok mindig teljesen kinyitott állapotban legyenek.
- A karok nem egyenesednek ki teljesen, szöget zárnak be egymással a könnyebb összecsukás érdekében.
Motoros működtetés és szerkezeti részletek:
- A henger korcolt acélcső, horganyozva, átmérő 70 mm, 1 mm-es falvastagság.
- A henger forgatását 1:10 áttételű hajtómű végzi, 8 méteres szélesség felett 1:13 a hajtómű áttétele.
- Kézi megoldás helyett motoros működtetés is választható.
- A motor a ponyvacsőbe kerül beépítésre, beépített végállás kapcsolókkal és hővédelemmel.
- A tartókonzolok és a többi alumínium öntvény, a karprofilok és a homlokcső RAL 7035 színre szinterezettek.













